Kompletní instalační set pro závěsné WC
- AQUABLADE® inovativní technologie splachování
- SoftClose mechanismus pozvolného sklápění sedátka
- tento instalační set je dostupný také v dalších variantách provedení ovládacího tlačítka
Obsahuje
- předstěnový instalační prvek Geberit Duofix (111.300.00.5), se splachovací nádržkou pod omítku Sigma 12 cm
- soupravu pro tlumení hluku (SP 156SET)
- závěsné WC Ideal Standard Tesi (T354601)
- ultraploché WC sedátko Ideal Standard Tesi (T352701)
- 2-činné ovládací tlačítko Geberit Sigma30, chrom (115.883.KH.1)
- stavební souprava pro předstěnovou montáž není součástí dodávky, je třeba objednat zvlášť
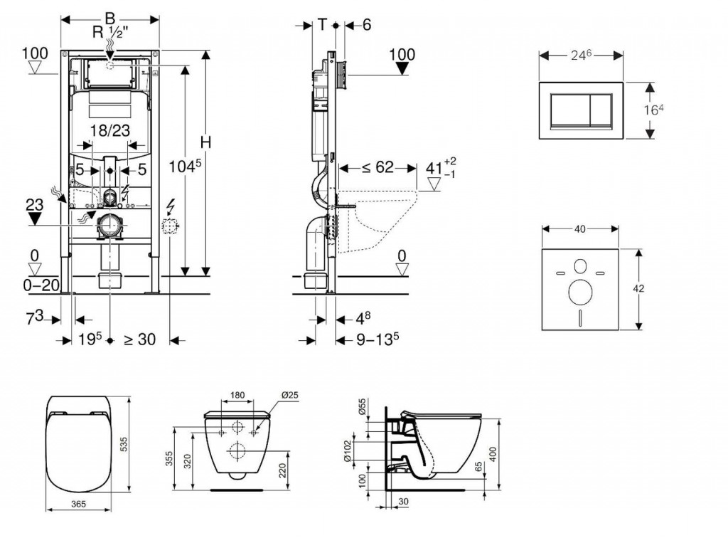
Montážní prvek Duofix pro závěsné WC se splachovací nádržkou pod omítku Sigma 12 cm
Univerzální a rychle použitelný montážní prvek pro veškerá řešení v oblasti suchých procesů. Přispívá také podstatnou měrou ke splnění těch nejvyšších nároků na akustickou a protipožární ochranu. Geberit Duofix je určen pro montáž do lehkých sádrokartonových příček nebo k instalaci před masivní stěnu. Montáž prvku je mimořádně rychlá za použití pouhých čtyř upevňovacích bodů.
Účel použití
- pro konstrukce prováděné suchým procesem
- k montáži do předstěnových instalací částečně vysokých nebo vysokých na výšku místnosti
- k montáži do instalačních stěn vysokých na výšku místnosti
- k montáži do systémových stěn Geberit Duofix částečně vysokých nebo vysokých na výšku místnosti
- pro závěsná WC s připojovacími rozměry podle EN 33:2011
- pro závěsná WC s vyložením do 62 cm
- pro 1 množství splachování, 2 množství splachování nebo splachování Start/Stop
- pro tloušťky podlahy 0–20 cm
Vlastnosti
- samonosný rám s nanesenou práškovou barvou
- rám s vrtanými otvory Ø 9 mm pro upevnění do dřevěné konstrukce
- rám připravený pro podpěry u WC keramik s malou opěrnou plochou
- podpěry pozinkované
- podpěry nastavitelné 0–20 cm
- podpěry s protiskluzovou úpravou
- patní desky otočné
- hloubka patní desky vhodná k montáži do U profilů UW 50 a UW 75 a do systémových profilů Geberit Duofix
- připojovací koleno pro montáž bez nářadí v různých hloubkách, rozsah nastavení 45 mm
- upevnění připojovacího kolena zvukově izolované
- splachovací nádržka pod omítku s ovládáním zepředu
- splachovací nádržka pod omítku izolovaná proti orosování
- u nastavení z výroby je možné okamžité dodatečné spláchnutí
- montážní a servisní práce na splachovací nádržce pod omítku bez nářadí
- přívod vody vzadu nebo nahoře uprostřed
- kryt pro hrubou montáž pro servisní otvor chrání před vlhkostí a nečistotami
- kryt pro hrubou montáž pro servisní otvor s možností zkrácení
- vybaven trubkovou chráničkou pro přívodní potrubí k připojení sprchovacích WC Geberit AquaClean
- s možností upevnění pro přívod elektřiny
Technické údaje
- tlak při průtoku: 10-1000 kPa
- maximální teplota vody: 25 °C
- splachovací množství, nastavení ve výrobě: 6 a 3 l
- velké splachovací množství, rozsah nastavení: 4.5 / 6 / 7.5 l
- malé splachovací množství, rozsah nastavení: 3-4 l
- výpočtový průtok: 0.11 l/s
- minimální přetlak pro výpočtový průtok: 50 kPa
Obsah dodávky
- přívod vody R 1/2", vhodný pro MF, s integrovaným rohovým ventilem a ručním ovládacím kolečkem
- kryt pro hrubou montáž pro servisní otvor
- 2 ochranné zátky
- připojovací souprava pro WC, Ø 90 mm
- připojovací koleno 90° z PE-HD, Ø 90 mm
- přechodka z PE-HD, Ø 90 / 110 mm
- 2 závitové tyče M12
- upevňovací materiál
Set závěsného WC a ultra plochého sedátka
Závěsný klozet
- s inovativní splachovací technologií AQUABLADE®
- pro podomítkovou nádržku se splachovací kapacitou od 4,5 l
- instalace: s podomítkovým modulem do zdi nebo do sádrokartonové příčky
- rozměry: 360 x 400 x 530 mm
- materiál: sanitární keramika
- skryté upevnění
- glazovaný kruh
- hluboké splachování
WC sedátko
- s funkcí pomalého sklápění SoftClose
- barva: bílá
- lehce odnímatelné pro snadnou údržbu
Ovládací tlačítko Sigma30, pro 2 množství splachování
- rozměry: 246 x 164 mm
- materiál: plast
- barva provedení: chrom
- k ovládání splachování u splachovacích nádržek pod omítku Geberit Sigma
- upevňovací rámeček
- 2 stavitelné úchytky
- 2 tyčky tlačítka
- tyčky tlačítka jsou zvukově izolované, rychlé nastavení bez nářadí
Parametry
| Kód | 111.300.00.5 NU6 |
|---|
Na balení si zakládáme! Prohlédněte si, jak připravujeme a zabalíme Vaši objednávku.
