GEBERIT - Duofix Modul pro závěsné WC s tlačítkem Sigma01, lesklý chrom + Duravit ME by Starck - WC a sedátko, Rimless, SoftClose (111.300.00.5 NM2)

Zboží není dostupné
a nelze jej v současné době zakoupit.
GEBERIT
Kód: SP111.300.00.5 NM2-G
EAN: 4065305003978
Značka: GEBERIT
E-mail výrobce: sales.cs@geberit.com
Adresa výrobce: Geberit spol. s r. o., Sokolovská 2408/222, 190 00 Praha 9 - Libeň
Odpovědnost za vady: 24 měs.
Hodnocení:
4 1

Sada předstěnové instalace, klozetu, WC sedátka a ovládacího tlačítka Obsahuje předstěnový instalační modul Geberit Duofix (111.300.00.5), se splachovací nádržkou pod omítku Sigma 12 cm soupravu pro tlumení hluku (SP 156SET) závěsný keramický klozet… (celý popis)

Potřebuje poradit s výběrem?
Poradíme Vám

Nechte nám na sebe číslo a my Vám zavoláme zpátky.

Přečtěte si naše zásady pro zpracování osobních údajů.

Sada předstěnové instalace, klozetu, WC sedátka a ovládacího tlačítka

Obsahuje

  • předstěnový instalační modul Geberit Duofix (111.300.00.5), se splachovací nádržkou pod omítku Sigma 12 cm
  • soupravu pro tlumení hluku (SP 156SET)
  • závěsný keramický klozet Duravit ME by Starck, včetně WC sedátka (45290900A1)
  • Rimless bezokrajové provedení splachování
  • DuraFix skryté upevnění toalety
  • SoftClose pozvolné, tiché sklápění
  • nerezové závěsy
  • 2-činné ovládací tlačítko Geberit Sigma01, lesklý chrom (115.770.21.5)
  • stavební souprava pro předstěnovou montáž není součástí dodávky, je třeba objednat zvlášť

Špičkový výrobek s velmi tichým provozem. Flexibilní design, rychlá a jednoduchá instalace.

Tento kompletní set je dostupný také v dalších variantách provedení ovládacího tlačítka.

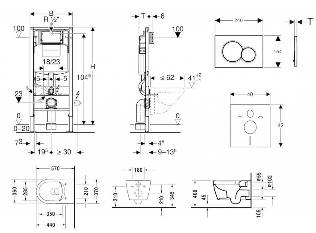
Montážní prvek Geberit Duofix pro závěsné WC se splachovací nádržkou pod omítku Sigma 12 cm

Univerzální a rychle použitelný montážní prvek pro veškerá řešení v oblasti suchých procesů. Přispívá také podstatnou měrou ke splnění těch nejvyšších nároků na akustickou a protipožární ochranu. Geberit Duofix je určen pro montáž do lehkých sádrokartonových příček nebo k instalaci před masivní stěnu. Montáž prvku je mimořádně rychlá za použití pouhých čtyř upevňovacích bodů.

Účel použití

  • pro konstrukce prováděné suchým procesem
  • k montáži do předstěnových instalací částečně vysokých nebo vysokých na výšku místnosti
  • k montáži do instalačních stěn vysokých na výšku místnosti
  • k montáži do systémových stěn Geberit Duofix částečně vysokých nebo vysokých na výšku místnosti
  • pro závěsná WC s připojovacími rozměry podle EN 33:2011
  • pro závěsná WC s vyložením do 62 cm
  • pro 1 množství splachování, 2 množství splachování nebo splachování Start/Stop
  • pro tloušťky podlahy 0–20 cm

Vlastnosti

  • samonosný rám s nanesenou práškovou barvou
  • rám s vrtanými otvory Ø 9 mm pro upevnění do dřevěné konstrukce
  • rám připravený pro podpěry u WC keramik s malou opěrnou plochou
  • podpěry pozinkované
  • podpěry nastavitelné 0–20 cm
  • podpěry s protiskluzovou úpravou
  • patní desky otočné
  • hloubka patní desky vhodná k montáži do U profilů UW 50 a UW 75 a do systémových profilů Geberit Duofix
  • připojovací koleno pro montáž bez nářadí v různých hloubkách, rozsah nastavení 45 mm
  • upevnění připojovacího kolena zvukově izolované
  • splachovací nádržka pod omítku s ovládáním zepředu
  • splachovací nádržka pod omítku izolovaná proti orosování
  • u nastavení z výroby je možné okamžité dodatečné spláchnutí
  • montážní a servisní práce na splachovací nádržce pod omítku bez nářadí
  • přívod vody vzadu nebo nahoře uprostřed
  • kryt pro hrubou montáž pro servisní otvor chrání před vlhkostí a nečistotami
  • kryt pro hrubou montáž pro servisní otvor s možností zkrácení
  • vybaven trubkovou chráničkou pro přívodní potrubí k připojení sprchovacích WC Geberit AquaClean
  • s možností upevnění pro přívod elektřiny

Technické údaje

  • tlak při průtoku: 10-1000 kPa
  • maximální teplota vody: 25 °C
  • splachovací množství, nastavení ve výrobě: 6 a 3 l
  • velké splachovací množství, rozsah nastavení: 4.5 / 6 / 7.5 l
  • malé splachovací množství, rozsah nastavení: 3-4 l
  • výpočtový průtok: 0.11 l/s
  • minimální přetlak pro výpočtový průtok: 50 kPa

Obsah dodávky

  • přívod vody R 1/2", vhodný pro MF, s integrovaným rohovým ventilem a ručním ovládacím kolečkem
  • kryt pro hrubou montáž pro servisní otvor
  • 2 ochranné zátky
  • připojovací souprava pro WC, Ø 90 mm
  • připojovací koleno 90° z PE-HD, Ø 90 mm
  • přechodka z PE-HD, Ø 90 / 110 mm
  • 2 závitové tyče M12
  • upevňovací materiál

Protihluková sada pro závěsné WC

  • pro montáž keramiky se vzdáleností upevnění 18 cm nebo 23 cm
  • přerušuje přenos hluku u WC a bidetu
  • materiál: polyetylén-pěna
  • 1x zvukově-izolační vložka
  • 2x podložka

Závěsný klozet ME by Starck, s hlubokým splachováním a sedátkem SoftClose

  • rozměry: 370 x 570 mm
  • materiál: sanitární keramika
  • objem splachování: 4,5 l
  • Rimless bezokrajové provedení
  • zadní odpad
  • instalace: zavěšením na stěnu
  • DuraFix sada pro skryté upevnění toalety
  • WC sedátko s funkcí pozvolného sklápění SoftClose
  • odnímatelné, se závěsy z nerezové oceli
  • materiál: plast, barva alpská bílá

Ovládací tlačítko Sigma01, pro 2 množství splachování

  • k ovládání splachování u splachovacích nádržek pod omítku Geberit Sigma
  • ovládání zepředu
  • tyčky tlačítka zvukově izolované, rychlé nastavení bez nářadí
  • rozměry: 246 x 164 mm
  • materiál: plast
  • barva: lesklý chrom
  • ovládací síla:
  • upevňovací rámeček
  • 2 stavitelné úchytky
  • 2 tyčky tlačítka

Parametry

Kód 111.300.00.5 NM2

Na balení si zakládáme! Prohlédněte si, jak připravujeme a zabalíme Vaši objednávku.


Kód 111.300.00.5 NM2
Na balení si zakládáme!
Prohlédněte si, jak připravujeme a zabalíme Vaši objednávku.
DHL - Doručení na adresu
Doručení na adresu s dodáním 1 - 2 pracovní dny od odeslání.
389 Kč
TOPTRANS - Doručení na adresu
Doručení na adresu s dodáním 1 - 2 pracovní dny od odeslání.
389 Kč
TOPTRANS - Vyzvednutí na depu
Vyzvednete si zboží na depu TOPTRANS. Vyzvednutí je možné PO - PÁ 8:00 - 18:00.
389 Kč
Doobjednávka
Pokud máte u nás otevřenou objednávku, ke které chcete přidat další produkt. Dodání 1 - 2 pracovní dny od odeslání.
zdarma
Osobní odběr - prodejna MOST
Objednané zboží si můžete vyzvednout v naší prodejně na adrese SVĚT KOUPELNY Višňová 983 (vedle VZP), 434 01 Most, PO - PÁ 9:00 - 15:30, SO 9:00 - 12:00. Čekejte na informaci že je zboží připravené k výdeji. Děkujeme
zdarma

Produkt vyžaduje zabalení na paletu
Za uvedený typ balení je účtován poplatek ve výši +149 Kč


Jak bude zboží zabalené?

Nevratná půlpaleta

Vaše objednávka bude zabalena na nevratnou půlpaletu s dřevěným rámem, který chrání Vaše zboží proti poškození při přepravě. Hlavním důvodem je to, že se snažíme dělat maximum pro to, aby k Vám objednávka dorazila v pořádku a nepoškozená.

4,0
4 1

Počet hodnocení: 1

Jak se recenze ověřují?

Napsat recenzi

U zboží prozatím nikdo nepřidal žádný dotaz. Můžete být první…

Přidat dotaz
Načítám...