Sada předstěnové instalace, klozetu, WC sedátka a ovládacího tlačítka
Obsahuje
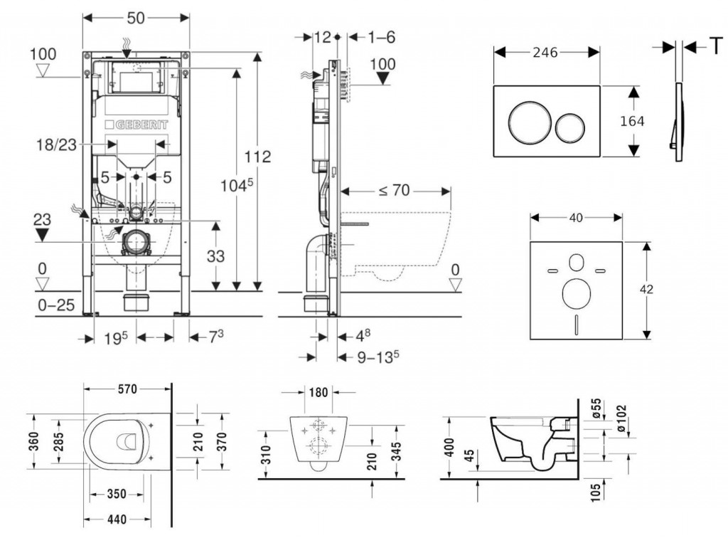
- předstěnový instalační modul Geberit Duofix (111.300.00.6), se splachovací nádržkou pod omítku Sigma 12 cm
- soupravu pro tlumení hluku (SP 156SET)
- závěsný keramický klozet Duravit ME by Starck, včetně WC sedátka (45290900A1)
- Rimless bezokrajové provedení splachování, DuraFix skryté upevnění toalety
- SoftClose pozvolné, tiché sklápění
- nerezové závěsy
- 2-činné ovládací tlačítko Geberit Sigma20, alpská bílá/lesklý chrom
- stavební souprava pro předstěnovou montáž není součástí dodávky, je třeba objednat zvlášť
Tento kompletní set je dostupný také v dalších variantách provedení ovládacího tlačítka.
Montážní prvek Duofix pro závěsné WC se splachovací nádržkou pod omítku Sigma 12 cm
Účel použití
- pro konstrukce prováděné suchým procesem
- k montáži do předstěnových instalací částečně vysokých nebo vysokých na výšku místnosti
- k montáži do instalačních stěn vysokých na výšku místnosti
- k montáži do systémových stěn Geberit Duofix částečně vysokých nebo vysokých na výšku místnosti
- pro závěsná WC s připojovacími rozměry podle EN 33 a přesahem do 70 cm
- pro 1-činné, 2 -činné nebo Start/Stop splachování
- pro tloušťky podlahy 0–25 cm
Vlastnosti
- samonosný rám s nanesenou práškovou barvou
- rám připravený pro podpěry u WC keramik s malou opěrnou plochou
- podpěry pozinkované
- podpěry s protiskluzovou úpravou
- patní desky otočné, vhodné pro montáž do U-profilů UW 50 a UW 75
- připojovací koleno pro montáž bez nářadí v různých hloubkách, rozsah nastavení 45 mm
- splachovací nádržka pod omítku izolovaná proti orosování
- u nastavení z výroby je možné okamžité dodatečné spláchnutí
- montážní a servisní práce na splachovací nádržce pod omítku bez nářadí
- přívod vody vzadu nebo nahoře uprostřed
- kryt pro hrubou montáž pro servisní otvor chrání před vlhkostí a nečistotami
- kryt pro hrubou montáž pro servisní otvor s možností zkrácení
- vybaven trubkovou chráničkou pro přívodní potrubí k připojení sprchovacích WC Geberit AquaClean
- s možností upevnění pro přívod elektřiny
Technické údaje
- tlak při průtoku: 10-1000 kPa
- maximální teplota vody: 25 °C
- splachovací množství, nastavení ve výrobě: 6 a 3 l
- velké splachovací množství, rozsah nastavení: 4 / 4.5 / 6 / 7.5 l
- malé splachovací množství, rozsah nastavení: 2-4 l
- výpočtový průtok: 0.09 l/s
- minimální přetlak pro výpočtový průtok: 10 kPa
Obsah dodávky
- přívod vody R 1/2", vhodný pro MF, s integrovaným rohovým ventilem a ručním ovládacím kolečkem
- kryt pro hrubou montáž pro servisní otvor
- připojovací souprava pro WC, Ø 90 mm
- připojovací koleno 90° z PE-HD, Ø 90 mm
- přechodka z PE-HD, Ø 90 / 110 mm
- upevňovací materiál
Stavební souprava pro předstěnovou montáž není součástí balení.
Protihluková sada pro závěsné WC
- pro montáž keramiky se vzdáleností upevnění 18 cm nebo 23 cm
- přerušuje přenos hluku u WC a bidetu
- materiál: polyetylén-pěna
- 1x zvukově-izolační vložka
- 2x podložka
Závěsný klozet ME by Starck, s hlubokým splachováním a sedátkem SoftClose
- rozměry: 370 x 570 mm
- materiál: sanitární keramika
- objem splachování: 4,5 l
- Rimless bezokrajové provedení
- zadní odpad
- instalace: zavěšením na stěnu
- DuraFix sada pro skryté upevnění toalety
- WC sedátko s funkcí pozvolného sklápění SoftClose
- odnímatelné, se závěsy z nerezové oceli
- materiál: plast, barva alpská bílá
Dvojčinné ovládací tlačítko Sigma20
- rozměry: 246 x 164 x 15 mm
- materiál: plast
- provedení: bílá, designové kroužky: lesklý chrom
- k ovládání splachování nádržek pod omítku Geberit Sigma
- manuální ovládání zepředu, ovládací síla:
- úsporné splachování pro 2 množství vody
- upevňovací rámeček
- sada připojovacích tyček tlačítka - zvukově izolované, rychlé nastavení bez použití nářadí
- 2 stavitelné úchytky
- tlačítko je možné kombinovat s jednotkou odsávání zápachu - dávkovač tyčinek DuoFresh (je třeba objednat samostatně)
Parametry
| Kód | SANI11CP3111 |
|---|
Na balení si zakládáme! Prohlédněte si, jak připravujeme a zabalíme Vaši objednávku.
