Sada předstěnové instalace, klozetu, WC sedátka a ovládacího tlačítka
Obsahuje
- Předstěnový instalační modul Geberit Duofix, se splachovací nádržkou pod omítku Sigma 12 cm
- Soupravu pro tlumení hluku
- Závěsný keramický klozet Duravit D-Code, včetně WC sedátka
- Rimless bezokrajové provedení splachování
- SoftClose pozvolné, tiché sklápění
- 2-činné ovládací tlačítko Geberit Sigma20, alpská bílá/lesklý chrom
Špičkový výrobek s velmi tichým provozem. Flexibilní design, rychlá a jednoduchá instalace.
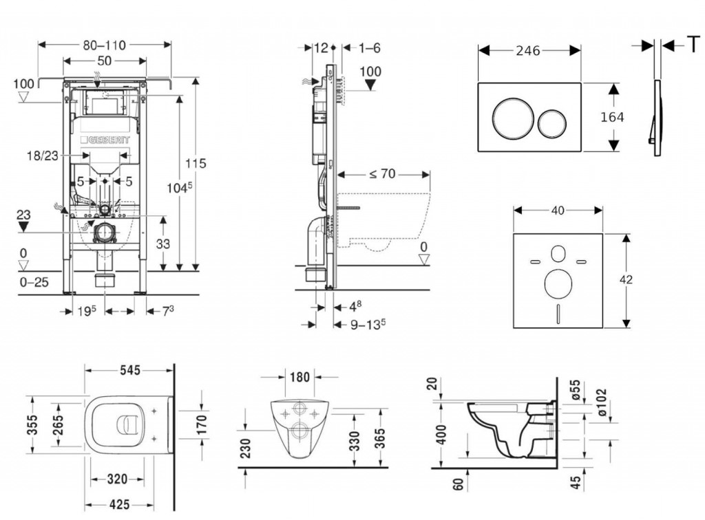
Montážní prvek Geberit Duofix pro závěsné WC se splachovací nádržkou pod omítku Sigma 12 cm, k instalaci mezi boční stěny
Specifikace montáže
Do podlahy je prvek ukotven pomocí dvou podpěr, které jsou plynule výsuvné a tím umožňují individuální nastavení výšky WC mísy. To ocení při dosedání a vstávání zvláště vyšší, starší a zdravotně handicapovaní lidé. Výsuvné vodorovné rozpěry zabezpečí jednoduchou a spolehlivou montáž i v různých šířkách místnosti. Případná demontáž ventilů (napouštěcího a vypouštěcího) je snadná díky dostatečně velkému servisnímu otvoru skrytému za ovládacím tlačítkem. Opláštění i s obkladem lze připevnit přímo na rám prvku a tak nedochází ke zbytečnému zmenšení prostoru WC. Konstrukce prvku Duofix dovoluje provést montáž takovým způsobem, aby byla možná jeho demontáž, např. v případě rekonstrukce stoupacích potrubí v instalační šachtě. Duofix má veškeré vývody pro napojení odpadu, vody a zařizovacího předmětu pevně fixovány, což zjednodušuje montáž a omezuje možnost chybného napojení na minimum.
Účel použití
- Pro kovové a dřevěné sloupkové stěny
- K montáži do čelních stěn částečně vysokých nebo vysokých na výšku místnosti
- K montáži do úzkých prostor a výklenků
- Pro tloušťky podlahy 0–25 cm
- Pro závěsná WC
Vlastnosti
- Staticky samonosný rám, chráněný proti korozi práškovým potahem
- Nastavitelný do šířky
- Rám pro závěsná WC s připojovacími rozměry dle EN 33 a vyložením až 70 cm
- Alternativní montážní poloha pro nástěnné kotvy
- Patní desky lze otáčet, vhodné pro montáž do U profilů UW 50 a UW 75
- Pozinkované podpěry, chráněné proti korozi, s protiskluzovými vlastnostmi
- Připojovací koleno pro montáž bez nářadí v různých hloubkách, rozsah nastavení 45 mm
- Splachovací nádržka pod omítku Geberit Sigma 12 cm, s izolací proti orosování
- Pro ovládání zepředu, vhodné pro 1 množství splachování, 2 množství splachování a splachování Start/Stop
- U nastavení z výroby je možné okamžité dodatečné spláchnutí
- Montážní a servisní práce na splachovací nádržce pod omítku bez nářadí
- Přívod vody vzadu nebo nahoře uprostřed
- Kryt pro hrubou montáž pro servisní otvor s možností zkrácení, chrání před vlhkostí a nečistotami
- S trubkovou chráničkou pro přívodní potrubí vody pro sprchovací WC Geberit AquaClean a pro připojovací kabel
- Možnost upevnění pro přívod elektřiny a Power & Connect Box
Technické údaje
- Tlak při průtoku: 10-1000 kPa
- Maximální teplota vody: 25 °C
- Splachovací množství, nastavení ve výrobě: 6 a 3 l
- Velké splachovací množství, rozsah nastavení: 4 / 4.5 / 6 / 7.5 l
- Malé splachovací množství, rozsah nastavení: 3-4 l
Obsah dodávky
- Přívod vody R 1/2", vhodný pro MasterFix a MeplaFix, s integrovaným rohovým ventilem a ručním ovládacím kolečkem
- Kryt pro hrubou montáž pro servisní otvor
- Připojovací souprava pro WC, Ø 90 mm
- Připojovací koleno 90° z PE-HD, Ø 90 mm
- Přechodka z PE-HD, Ø 90 / 110 mm
- Upevňovací a ochranný materiál
Protihluková sada pro závěsné WC
- Pro montáž keramiky se vzdáleností upevnění 18 cm nebo 23 cm
- Přerušuje přenos hluku u WC a bidetu
- Materiál: polyetylén-pěna
- 1x zvukově-izolační vložka
- 2x podložka
Závěsný klozet D-Code, s hlubokým splachováním, sedátko SoftClose
- Rozměry: 355 x 545 mm
- Materiál: sanitární keramika
- Rimless bezokrajové provedení
- Objem splachování: 4,5 l
- Zadní odpad
- Instalace: zavěšením na zeď
- WC sedátko s funkcí pozvolného sklápění SoftClose
- Materiál: plast, barva alpská bílá
Dvojčinné ovládací tlačítko Sigma20
- Rozměry: 246 x 164 x 15 mm
- Materiál: plast
- Provedení: bílá, designové kroužky: lesklý chrom
- K ovládání splachování nádržek pod omítku Geberit Sigma
- Manuální ovládání zepředu, ovládací síla:
- Úsporné splachování pro 2 množství vody
- Upevňovací rámeček
- Sada připojovacích tyček tlačítka - zvukově izolované, rychlé nastavení bez použití nářadí
- 2 stavitelné úchytky
Příslušenství
- Tlačítko je možné kombinovat s jednotkou odsávání zápachu - dávkovač tyčinek DuoFresh (je třeba objednat samostatně)
Parametry
| Kód | SANI11CP3102 |
|---|
Na balení si zakládáme! Prohlédněte si, jak připravujeme a zabalíme Vaši objednávku.
