Sada předstěnové instalace, klozetu, WC sedátka a ovládacího tlačítka
Obsahuje
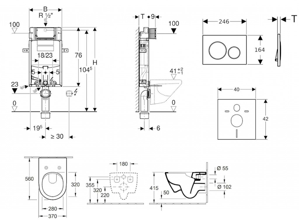
- předstěnový instalační modul Geberit Kombifix (110.302.00.5), se splachovací nádržkou pod omítku Sigma 12 cm
- soupravu pro tlumení hluku (SP 156SET)
- závěsný keramický klozet Villeroy & Boch Subway 2.0, včetně Slim WC sedátka (5614R2R1)
- DirectFlush technologie bezokrajového splachování
- AquaReduct technologie pro úsporu vody
- CeramicPlus povrchová úprava keramické glazury, která zajišťuje optimální hygienu a čistotu
- QuickRelease nerezové úchyty
- SoftClose pozvolné, tiché sklápění
- 2-činné ovládací tlačítko Geberit Sigma20, alpská bílá/lesklý chrom (115.882.KJ.1)
Špičkový výrobek s velmi tichým provozem. Flexibilní design, rychlá a jednoduchá instalace.
Tento kompletní set je dostupný také v dalších variantách provedení ovládacího tlačítka.
Montážní prvek Geberit Kombifix pro závěsné WC se splachovací nádržkou pod omítku Sigma 12 cm
Účel použití
- pro zděné stěny
- k montáži do předstěnových instalací částečně vysokých nebo vysokých na výšku místnosti
- pro závěsná WC s připojovacími rozměry podle EN 33:2011
- pro 1 množství splachování, 2 množství splachování nebo splachování Start/Stop
Vlastnosti
- montážní rám s práškovou barvou
- montážní rám se čtyřmi upevňovacími úhelníky
- připojovací koleno k montáži bez nářadí
- upevnění připojovacího kolena lze instalovat zepředu bez nářadí
- splachovací nádržka pod omítku s ovládáním zepředu
- splachovací nádržka pod omítku izolovaná proti orosování
- u nastavení z výroby je možné okamžité dodatečné spláchnutí
- montážní a servisní práce na splachovací nádržce pod omítku bez nářadí
- přívod vody vzadu nebo nahoře uprostřed
- kryt pro hrubou montáž pro servisní otvor chrání před vlhkostí a nečistotami
- kryt pro hrubou montáž pro servisní otvor s možností zkrácení
- vybaven trubkovou chráničkou pro přívodní potrubí k připojení sprchovacích WC Geberit AquaClean
- s možností upevnění pro přívod elektřiny
Technické údaje
- tlak při průtoku: 10-1000 kPa
- maximální teplota vody: 25 °C
- splachovací množství, nastavení ve výrobě: 6 a 3 l
- velké splachovací množství, rozsah nastavení: 4.5 / 6 / 7.5 l
- malé splachovací množství, rozsah nastavení: 3-4 l
Obsah dodávky
- přívod vody R 1/2", vhodný pro MF, s integrovaným rohovým ventilem a ručním ovládacím kolečkem
- kryt pro hrubou montáž pro servisní otvor
- připojovací souprava pro WC, Ø 90 mm
- připojovací koleno Ø 90 / 110 mm
- 2 ochranné zátky
- 2 závitové tyče M12
- upevňovací materiál
Protihluková sada pro závěsné WC
- pro montáž keramiky se vzdáleností upevnění 18 cm nebo 23 cm
- přerušuje přenos hluku u WC a bidetu
- materiál: polyetylén-pěna
- 1x zvukově-izolační vložka
- 2x podložka
Závěsný klozet Subway 2.0
- DirectFlush bezokrajová konstrukce splachování
- splachovací objem: 3/4,5 l
- zadní vodorovný odpad
- rozměry: 370 x 560 mm
- materiál: sanitární keramika
- barva: alpská bílá s povrchovou úpravou CeramicPlus
- montáž zavěšením stěnu
- nevhodné pro tlakové/pneumatické splachovače
WC sedátko Slim s poklopem
- tenké provedení
- SoftClosing pozvolné sklápění
- materiál: duroplast
- barva: alpská bílá
- závěsy z nerezové oceli
- QuickRelease snadné vyjmutí sedátka
Dvojčinné ovládací tlačítko Sigma20
- rozměry: 246 x 164 x 15 mm
- materiál: plast
- provedení: bílá, designové kroužky: lesklý chrom
- k ovládání splachování nádržek pod omítku Geberit Sigma
- manuální ovládání zepředu, ovládací síla:
- úsporné splachování pro 2 množství vody
Rozsah dodávky
- upevňovací rámeček
- sada připojovacích tyček tlačítka - zvukově izolované, rychlé nastavení bez použití nářadí
- 2 stavitelné úchytky
Příslušenství
- tlačítko je možné kombinovat s jednotkou odsávání zápachu - dávkovač tyčinek DuoFresh (je třeba objednat samostatně)
Parametry
| Kód | 110.302.00.5 NI4 |
|---|
Na balení si zakládáme! Prohlédněte si, jak připravujeme a zabalíme Vaši objednávku.
