Set obsahuje
- předstěnový instalační modul Geberit Kombifix se splachovací nádržkou pod omítku
- keramický závěsný klozet kielle Arkas I se sedátkem SoftClose
- ovládací tlačítko Geberit Sigma01 pro 2-činné splachování
- soupravu pro tlumení hluku
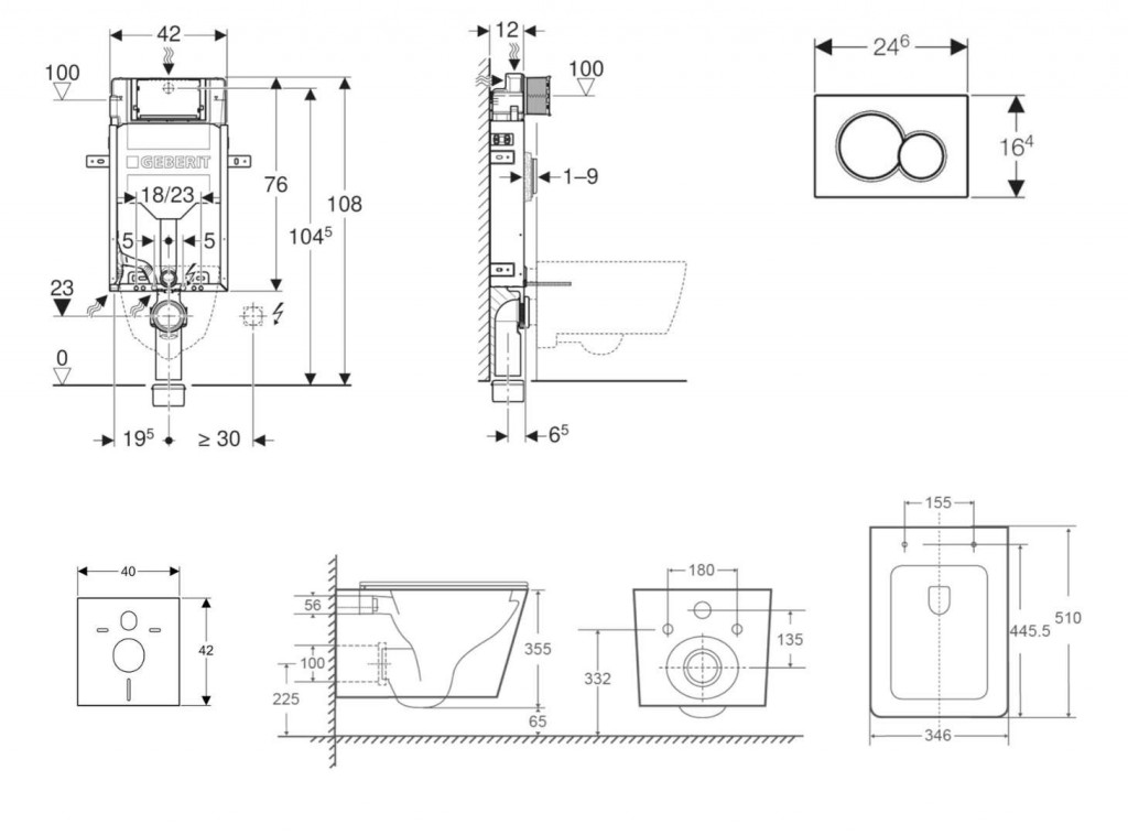
Předstěnový instalační modul Kombifix pro závěsné WC se splachovací nádržkou Sigma 12 cm
- pro zděné stěny
- k montáži do předstěnových instalací částečně vysokých nebo vysokých na výšku místnosti
- pro závěsná WC s připojovacími rozměry podle EN 33:2011
- pro 1-činné, 2 -činné nebo Start/Stop splachování
Vlastnosti a technické údaje
- montážní rám s práškovou barvou a se čtyřmi upevňovacími úhelníky
- připojovací koleno k montáži bez nářadí
- upevnění připojovacího kolena lze instalovat zepředu bez nářadí
- splachovací nádržka pod omítku s ovládáním zepředu, izolovaná proti orosování
- u nastavení z výroby je možné okamžité dodatečné spláchnutí
- montážní a servisní práce na splachovací nádržce pod omítku bez nářadí
- přívod vody vzadu nebo nahoře uprostřed
- kryt pro hrubou montáž pro servisní otvor chrání před vlhkostí a nečistotami, s možností zkrácení
- vybaven trubkovou chráničkou pro přívodní potrubí k připojení sprchovacích WC Geberit AquaClean
- s možností upevnění pro přívod elektřiny
- tlak při průtoku: 10-1000 kPa
- maximální teplota vody: 25 °C
- splachovací množství, nastavení ve výrobě: 6 a 3 l
- velké splachovací množství, rozsah nastavení: 4.5 / 6 / 7.5 l
- malé splachovací množství, rozsah nastavení: 3-4 l
Rozsah dodávky
- přívod vody R 1/2", vhodný pro MF, s integrovaným rohovým ventilem a ručním ovládacím kolečkem
- kryt pro hrubou montáž pro servisní otvor
- připojovací souprava pro WC, Ø 90 mm
- připojovací koleno Ø 90 / 110 mm
- 2 ochranné zátky
- 2 závitové tyče M12
- upevňovací materiál
Závěsné WC kielle Arkas I
- barva: bílá
- Vortex Rimless+ inovativní splachování pomocí vodního víru, které zajišťuje dokonalé očištění toalety
- moderní vzhled - splachovací otvor je umístěn v přední části mísy a není tak na první pohled viditelný
- rozměry: 510 x 346 mm
- skryté upevnění
- hluboké splachování
- splachovací objem 3/4,5 l
- nelze osadit na instalační moduly s odsáváním zápachu
WC sedátko kielle
- barva: bílá
- materiál: duroplast (UF)
- rozměry: 425 x 345 mm
- s funkcí pomalého sklápění SoftClose
- EasyLock lehce odnímatelné pro snadnou údržbu
Ovládací tlačítko Sigma01, pro 2-činné splachování
- barva: alpská bílá
- k ovládání splachování u splachovacích nádržek pod omítku Geberit Sigma
- ovládání zepředu
- tyčky tlačítka zvukově izolované, rychlé nastavení bez nářadí
- rozměry: 246 x 164 mm
- materiál: plast
- ovládací síla:
- obsahuje: upevňovací rámeček, 2 stavitelné úchytky, 2 tyčky tlačítka
Protihluková sada
- pro závěsné WC nebo závěsný bidet
- pro montáž keramiky se vzdáleností upevnění 18 cm nebo 23 cm
- přerušuje přenos hluku u WC a bidetu
- materiál: polyetylén-pěna
- obsahuje: 1x zvukově izolační vložku, 2x podložku
Parametry
| Kód | SANI15CA3164 |
|---|
Na balení si zakládáme! Prohlédněte si, jak připravujeme a zabalíme Vaši objednávku.
