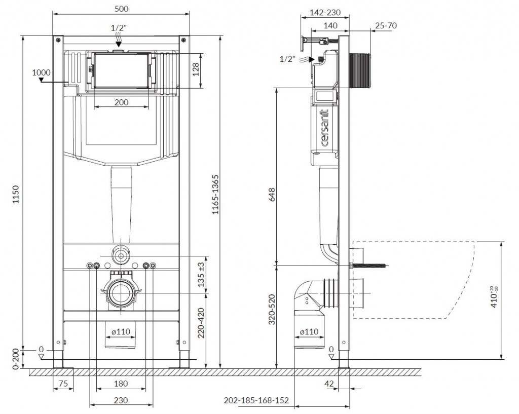
- šířka: 500 mm

- nastavitelná výška: 1165 - 1365 mm
- nastavitelná hloubka: 142 - 230 mm
Podomítkový rám závěsné WC mísy, pro suchou instalaci. Odolný, 50 cm široký rám. Zaručuje dlouhodobé a bezproblémové používání.
Vlastnosti:
• mechanické splachování
• možnost nastavení síly vypouštění vody na vypouštěcím ventilu
• rám z profilů 40 x 40 mm, práškově lakovaná ocel
• brzda v základně rámu
• vypouštěcí koleno nastavitelné do stran a dolů se 4stupňovým nastavením hloubky
• pozinkované, otočné rámové nohy se 4 montážními polohami
• nastavitelný nástěnný montážní systém QUICK FIX s mikronastavením
• ultra tichý plnicí ventil s mosazným připojovacím hrotem, NF certifikován
• hygienický FRESH SYSTEM součástí balení
• přední splachovací tlačítko instalace
• možnost připojení vody k nádrži ve 2 středových bodech: horní středový nebo zadní středový
• přizpůsobeno na dvoudílný splachovací systém: 2/4L, 3/5L (tovární nastavení) nebo 3/6L
• snadné nastavení vnitřního prvky rámu bez použití nářadí
• úhlový uzavírací ventil s možností servisu
• barvy značení pro snadnou montáž
• možnost instalace s WC mísou pro handicapované
• široký výběr tlačítek
Součástí modulu není ovládací tlačítko, to je možné koupit podle vašeho výběru v "příslušenství".
Plánujete rekonstrukci koupelny či toalety a výběr se vám zdá složitý?
Pokud jste se vám výběr zdá složitý a máte obavu, že na některou z položek zapomenete, můžete zakoupit instalační set za zvýhodněnou cenu, který už většinou obsahuje vše potřebné. Počítejte s tím, že sestava je pevně daná, takže už si nemůžete navolit jednotlivé položky podle sebe.
Podomítková splachovací nádrž je konstrukční prvek, který se používá při instalaci závěsné mísy. Na rozdíl od tradičního designu, kde je splachovací nádrž umístěna na viditelném místě na stěně nad WC mísou, podomítkový modul je zabudován do zdi, který poskytuje moderní a čistý vzhled koupelny. Splachovací nádrž je skrytá za zdí, což snižuje viditelné prvky a vytváří minimalistický vzhled.
Při instalaci podomítkového WC modulu je třeba mít na paměti, že vyžaduje určitou přípravu stavebního otvoru ve zdi a správné napojení vodovodních a kanalizačních přípojek. Je obvykle nutné, aby instalaci provedl kvalifikovaný instalatér nebo odborník s příslušnými zkušenostmi a znalostmi.
Parametry
| Hloubka | 14,2 - 23 cm |
|---|---|
| Výška | nastavitelná 116,5 - 136,5 cm |
| Materiál | ocel, plast |
| Charakter | pro suchou instalaci |
| Instalace | se závěsnou WC mísou |
| Výrobce | CERSANIT |
| Kód | K97-525 |
| Série | AQUA |
Na balení si zakládáme! Prohlédněte si, jak připravujeme a zabalíme Vaši objednávku.
