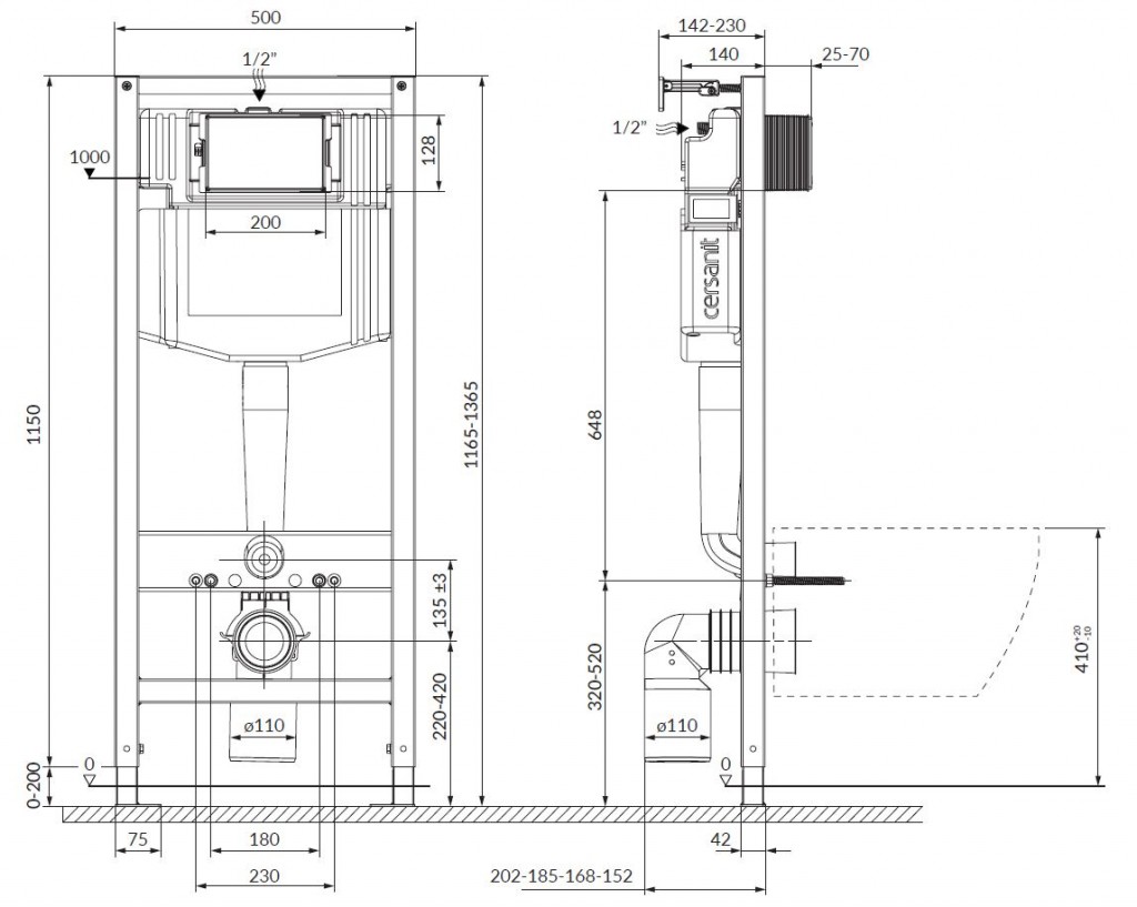
- šířka: 500 mm

- nastavitelná výška: 1165 - 1365 mm
- nastavitelná hloubka: 142 - 230 mm
Podomítkový rám k závěsným WC mísám, pro suchou instalaci. Odolný, 50 cm široký rám. Zaručuje dlouhodobé a bezproblémové používání.
Vlastnosti:
• pneumatické oplachování
• rám z profilů 40 x 40 mm, ocel s práškovým nástřikem
• brzda v patce rámu
• odtokové koleno nastavitelné do stran a dolů s 4stupňovým nastavením hloubky
• pozinkované, otočné rámové nohy se 4 montáží poloh
• nastavitelný nástěnný systém QUICK FIX s mikronastavením
• ultratichý plnicí ventil s mosazným připojovacím hrotem, certifikát NF
• hygienický FRESH SYSTEM součástí balení
• přední instalace splachovacím tlačítkem
• možnost připojení vody k nádrži ve 2 centrálních bodech: nahoře , střední nebo zadní centrálně
• přizpůsobeno pro dvoudílný splachovací systém: 2/4L, 3/5L (tovární nastavení) nebo 3/6L
• snadné nastavení vnitřních prvků rámu bez použití nářadí
• servisovatelný úhlový řez- uzavírací ventil
• barevné značení pro snadnou instalaci
• možnost instalace s WC mísou pro handicapované
• široký výběr tlačítek
Součástí modulu není tlačítko, to je možné koupit podle vašeho výběru.
Plánujete rekonstrukci koupelny či toalety a výběr se vám zdá složitý?
Pokud jste se vám výběr zdá složitý a máte obavu, že na některou z položek zapomenete, můžete zakoupit instalační set za zvýhodněnou cenu, který už většinou obsahuje vše potřebné. Počítejte s tím, že sestava je pevně daná, takže už si nemůžete navolit jednotlivé položky podle sebe.
Podomítková splachovací nádrž je konstrukční prvek, který se používá při instalaci závěsné mísy. Na rozdíl od tradičního designu, kde je splachovací nádrž umístěna na viditelném místě na stěně nad WC mísou, podomítkový modul je zabudován do zdi, který poskytuje moderní a čistý vzhled koupelny. Splachovací nádrž je skrytá za zdí, což snižuje viditelné prvky a vytváří minimalistický vzhled.
Při instalaci podomítkového WC modulu je třeba mít na paměti, že vyžaduje určitou přípravu stavebního otvoru ve zdi a správné napojení vodovodních a kanalizačních přípojek. Je obvykle nutné, aby instalaci provedl kvalifikovaný instalatér nebo odborník s příslušnými zkušenostmi a znalostmi.
Parametry
| Hloubka | 14,2 - 23 cm |
|---|---|
| Materiál | ocel, plast |
| Charakter | pro suchou instalaci |
| Instalace | se závěsnou WC mísou |
| Šířka | 50 |
| Výška | nastavitelná 116,5 - 136,5 cm |
| Výrobce | CERSANIT |
| Kód | K97-521 |
| Série | AQUA |
Video
Na balení si zakládáme! Prohlédněte si, jak připravujeme a zabalíme Vaši objednávku.
