Předstěnový instalační modul pro závěsné toalety
- zpevněná instalace
- instalace do lehké příčky ze sádrokartonu
- uchycení do podlahy pomocí 2 pevných nohou, na každé patce 2 fixační body do podlahy
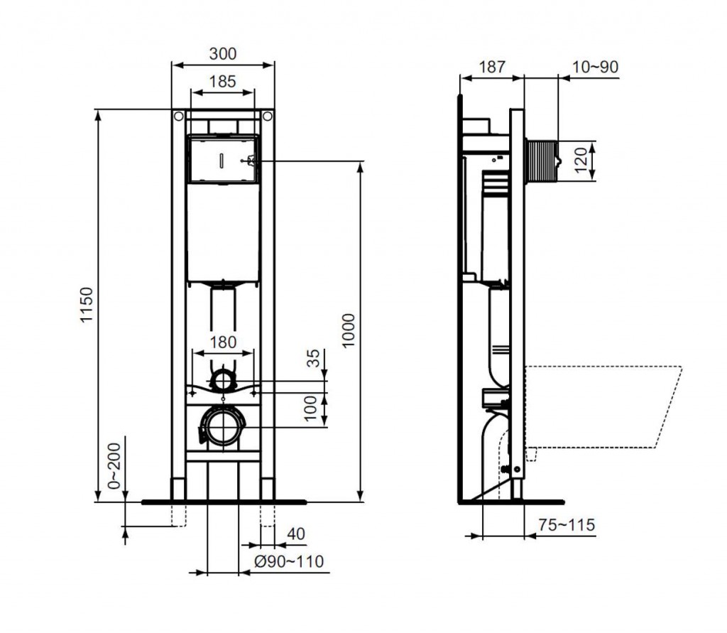
- podomítkový modul o šířce 300 mm, vhodný pro úzké stěny
- výška: 1150 mm, hloubka: 197 mm, minimální instalační hloubka: 187 mm
- nástěnná montáž
- testovaná nosnost rámu pro zatížení 400 kg
- samonosný rám s antikorozní ochranou a ochranou proti poškrábání
- snadná a rychlá instalace díky systému EasyFix
- hloubkově nastavitelné odpadní koleno
- samonosný výškově nastavitelný rám - nastavitelné patky (0–200 mm)
- podomítková nádržka s mechanickým ovládáním
- dvojčinné splachování přednastavené na 6/3 l s možností nastavení na objem 4/2 litrů
- podomítková nádržka z odolného polypropylenu (PP)
- k tepelnému namáháni, dodáváno s anti-kondenzačním obložením
- mechanická aktivace spláchnutí
- podomítková nádržka o hloubce 187 mm
- 1 horní přívod vody
- napouštěcí ventil CE označení EN 14055 CL1
Parametry
| Kód | E233367 |
|---|
Na balení si zakládáme! Prohlédněte si, jak připravujeme a zabalíme Vaši objednávku.
