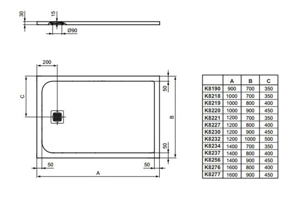
Ultratenká sprchová vanička Simplicity Stone
- rozměry: 1200 x 1000 mm
- výška: 30 mm
- materiál: litý mramor, se speciální povrchovou reliéfní vrstvou Ideal Solid
- barva bílá
- vzhled povrchu imituje hrubě otesaný kámen
- Antislip protiskluzová úprava
- odpad: Ø 90 mm
- včetně nerezové krytky
- instalace usazením na podlahu
- montážní příslušenství, nožičky a čelní panel není součástí dodávky
- odtoková souprava není součástí balení
Parametry
| Kód | K8232FR |
|---|
Na balení si zakládáme! Prohlédněte si, jak připravujeme a zabalíme Vaši objednávku.
