Antidrop je povrchová úprava skla pro jeho snadnou údržbu. Při výrobě skla je nanášena na jeho povrch s použitím nanotechnologie a je obsažena v ceně zástěn.
Ochranu proti přetečení vody u bezrámových zástěn zajišťuje nízká přetoková lišta, která dotváří čistý vzhled zástěny. Bezrámové zástěny tak působí svěžím elegantním dojmem.

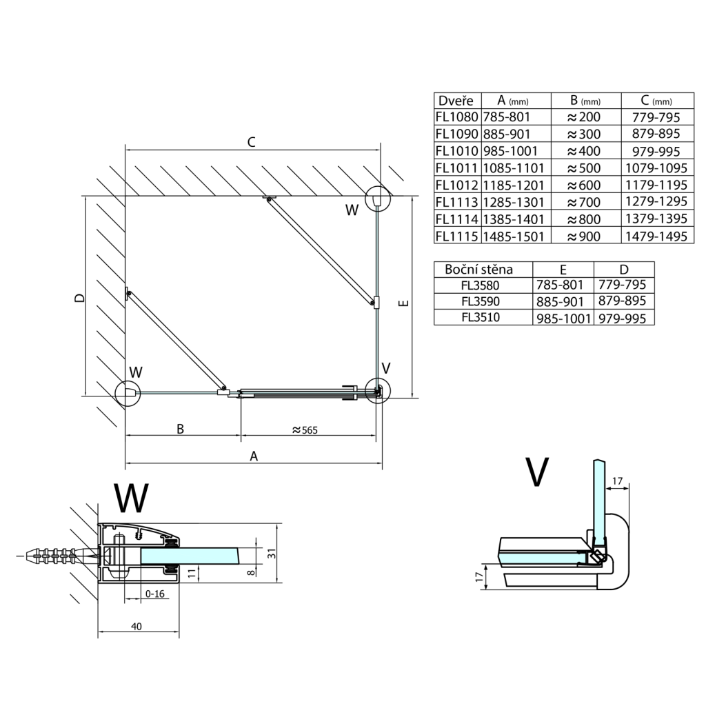
Bezrámové pantové zástěny FORTIS v moderním hranatém designu. Minimalistické pochromované panty v nekompromisním hranatém designu, zevnitř zapuštěné pro snadné čištění a se zvedací funkcí pro pohodlné otevírání. Bezpečnostní čiré sklo v tloušťce 8 mm je ošetřené povrchovou úpravou ANTIDROP pro snadné čištění. Výška 2000 mm. Hranaté pochromované madlo ve stejném minimalistickém designu jako panty.
Praktickým doplňkem je možnost nalepení madla na ručník přímo na skleněnou plochu nebo použití závěsných poliček (madla na ručník ani poličky nejsou součástí zástěn). Ke sprchovým zástěnám doporučujeme vaničky z litého mramoru nebo odtokové kanálky.
K čištění skel doporučujeme ASC čistící a ochranný prostředek, 94000.
Celková charakteristika sprchových zástěn série FORTIS:
- Dveře se zdvihovým mechanismem pantu
- Hranaté pochromované panty jsou zevnitř zapuštěné
- Hranaté minimalistické madlo
- ANTIDROP ochrana skel proti usazování vodního kamene a pro snadnou údržbu
- Rohová vzpěra pro vyšší stabilitu je součástí balení, délka vzpěry se liší podle šířky skla
- Snadná montáž pomocí nastavitelného stěnového profilu 0-16 mm
- Hliníková prahová lišta
- Extra čiré magnetické těsnění
- Instalace na vaničku nebo na podlahu
- Splňuje normu EN 14448
![]() |
![]() |
![]() |
![]() |
| Pochromované madlo | Mosazné pochromované panty se zvedací funkcí... | ... z vnitřní strany zapuštěné do skla | Stabilitu zástěn zajišťuje rohová vzpěra |
Parametry
| Rozměr | 100x100 |
|---|---|
| Tloušťka výplně | 8.00 |
| Tvar | Čtvercové zástěny |
| Výplň | Čiré sklo |
| Výška | 2000.00 |
| Šířka | 1000 |
| Úprava skla | Bezrámové provedení |
| Hloubka | 1000 |
| Profil | Chrom - Leštěný hliník |
| Typ otvírání | Levé |
| Vstup | 565 |
| Balení | 2 |
| Odpovědnost za vady | 2 roky |
| Ochranná vrstva skla | Antidrop |
| AKLIMATIZACE | Před instalací se musí zajistit dostatečná AKLIMATIZACE zboží podle ročního období, minimálně 48 hodin při pokojové teplotě. |
| Typ | Otevírací jednokřídlé |
| Kód | FL1010LFL3510 |
| Instalační rozměr | POZOR: Přesný instalační rozměr je v dokumentaci, označení v produktu není instalační rozměr. |
Na balení si zakládáme! Prohlédněte si, jak připravujeme a zabalíme Vaši objednávku.




